Description
3 bedroom villa for sale in Maldives, Atoll de Malé Sud. 524 m2, 2 levels, panoramic balcony, private swimming pool 20 m, lagoon view. 7 020 000 $ 6 460 000 €).
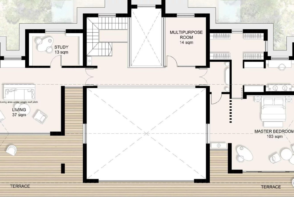
✨ VILLA 3 CHAMBRES VIEWING LAGON — ATOLL OF SOUTH MALDE, MALDIVES — These 3 bedroom villas embody elegance, comfort and sophistication in the heart of Maldives. With 524 m2 of living space spread over two levels, they feature an enveloping panoramic balcony offering exceptional views of the lagoon and white sandy beaches. Each villa has three luxurious suites, an office and a versatile room, allowing you to combine work, leisure and relaxation in an exceptional setting.
The main suite features a private bathroom with sea-facing bathtub and outdoor shower for total immersion in the surrounding nature. The 20-metre private swimming pool, surrounded by terraces and outdoor dining areas, is designed for relaxation and entertainment. A yoga pavilion and open living spaces on the ocean complete this set. Large volumes, high ceilings and high-end finishes — floor, luminaires, custom fittings — create a refined and warm atmosphere.
The program offers a full life experience: seafront gourmet restaurants, champagne bar and lounge, spa and wellness centre (salted water swimming pool, heated jacuzzi, sauna, hammam, meditation pavilions, Ayurvedic treatments), 9-hole golf course, tennis and padel courts, water sports (diving, snorkeling, sailing, sports fishing), cultural and creative workshops, children's club and families.
📋 MAIN CHARACTERISTICS — Living area : 524 m2 · Ground floor : 325 m2 · 1st floor : 199 m2 · Land : 2,050 m2 · 3 luxurious suites · Main suite with bathtub sea view · Outside shower · Office · Multipurpose room · Panoramic Balcony Enveloping · Yoga Pavilion · Private swimming pool 20 m · Terraces & outdoor dining areas · Lagoon view · South Male Atoll · Maldives · 45 minutes by boat from Velana International Airport
📍 ATOLL OF SOUTH DISEASE — MALDIVES — The Maldives, located in the Indian Ocean, is internationally recognized for its turquoise waters, pristine beaches and exceptional coral reefs. The Atoll de Malé Sud, where this program is located, combines practical access and exclusive isolation: just 45 minutes by boat from Velana International Airport, it preserves all the quietness necessary for a private stay. Marine biodiversity is remarkable — coloured corals, tropical fish, manta rays and whale sharks — for a diving and snorkeling paradise. The tropical climate, spectacular sunsets and crystal clear light define a unique lifestyle.
💎 WHY INVESTING MALDIVES — Having a 3 bedroom villa in this program represents an exceptional opportunity in the luxury real estate market in Maldives. Dream secondary residence, strategic investment or exclusive foot-to-earth in one of the most coveted destinations in the world: these properties combine natural beauty, absolute comfort and access to world-class infrastructure. Demand for luxury residences in Maldives is structurally above supply, ensuring sustainable heritage value.
🔒 PRICE (payment in USD) — euro indicative amounts by exchange rate — commission to the seller) —
3 Bedroom Villa Beach Residence — 524 m2 living space (ROC: 325 m2 · 1st : 199 m2) · Land : 2,050 m2 · 7 020 000 $ 6 460 000 €)
Prices and areas are indicative and may vary depending on location, view, level of customization and market conditions.
🤝 This property is presented in partnership with Kalliste International Luxury Real Estate.
👉 Are you interested in this property? Visit the property details on our website owners-clovis.com and use the contact form included on the page — an advisor will respond as soon as possible to arrange a private presentation and provide you with the complete file.
Clovis properties — Real estate — An independent agency specializing in the sale and acquisition of exceptional properties in France and abroad: castles, manor houses, character houses, prestigious villas and high-end apartments. Each property entrusted is the subject of a complete and detailed file, handled with rigour and discretion, from estimate to signature.
👉 Are you a buyer? Consult all our properties available on property-clovis.com
👉 You want to sell? Trust us your property on property-clovis.com and benefit from custom and confidential accompaniment.
Clovis properties — The Art of Character Real Estate — An independent agency specialising in the sale and acquisition of exceptional properties in France and abroad: châteaux, manor houses, characterful estates, prestige villas and premium apartments. Every property trusted to us is handled with thoroughness and discretion, from evaluation to completeness. A complete file is available for each listing.
👉 Looking to buy? Browse all our available properties at owners-clovis.com
👉 Looking to sell? Entrust us with your property at owners-clovis.com and benefits from a Tailored, confidential service.
Address
-
City: Male
-
Country: Maldives
Details
-
Property ID HZ86348746
-
Prices 6,460,000€
-
Chamber 0
-
Exhibit 0
-
Bathroom 0
-
Type of property Luxury properties, Luxury homes
-
Status of ownership Sale
Additional details
-
Type of property House















